3 miegamųjų butas, San Miguel de Salinas

  • €322 000
Calle Verdi, San Miguel de Salinas, el Baix Segura / La Vega Baja, Alacant / Alicante, Comunitat Valenciana, 03192, España
Nauja statyba
3 miegamųjų butas, San Miguel de Salinas
Calle Verdi, San Miguel de Salinas, el Baix Segura / La Vega Baja, Alacant / Alicante, Comunitat Valenciana, 03192, España
  • €322 000

  • 2256E
  • Objekto ID
  • Butas
  • Objekto tipas
  • 3
  • Miegamieji
  • 2
  • Vonios kambariai
  • 98

Video

  • Miestas San Miguel de Salinas
  • Šalis Ispanija

Išsami informacija

  • Objekto ID: 2256E
  • Rinka: Pirminė
  • Plotas: 98 m²
  • Pridavimas: 2026-10-31
  • Atstumas iki jūros: iki 5 km
  • Buitinė technika: Taip
  • Terasa: 44 m²
  • Baseinas: Bendras
  • Šalia: Parduotuvių
  • Parkingas: Taip
  • Oro kondicionavimo sistema: Yra
  • Baldai: Ne

Aprašymas

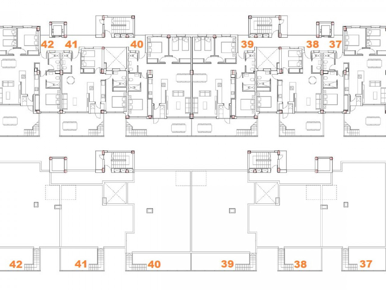
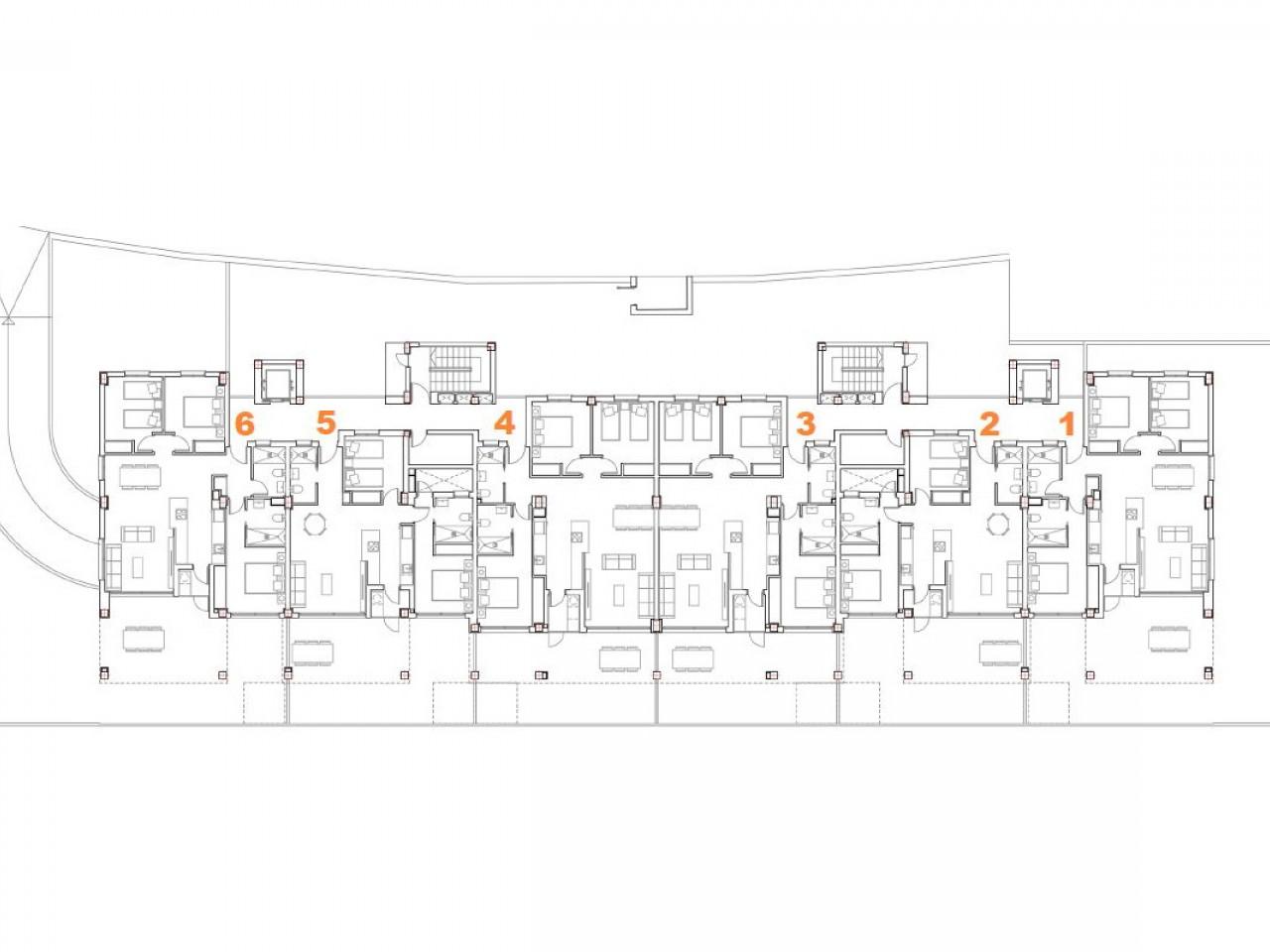
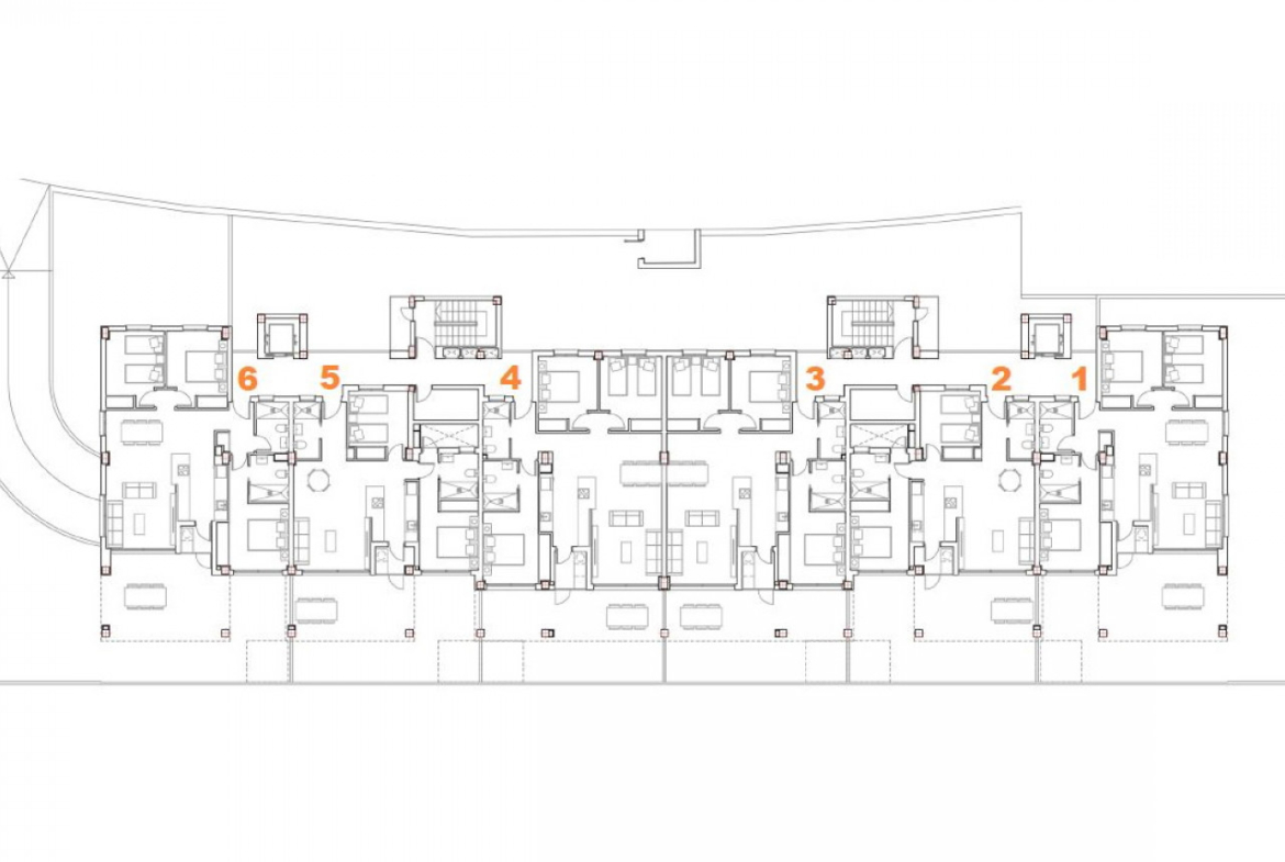
Sol de Salinas – išskirtinis gyvenamasis kompleksas, sudarytas iš 5 apartamentų blokų su erdviomis bendromis patalpomis, suprojektuotas taip, kad pasiūlytų komfortą ir gyvenimo kokybę unikalioje natūralioje San Miguel de Salinas aplinkoje.

Šiame išskirtiniame gyvenamajame komplekse galite rinktis dviejų ar trijų miegamųjų apartamentus pirmame aukšte su dideliais privačiais sodais, tarpinius aukštus su daugiau nei 20 m² terasomis ir mansarda su terasomis ir privačiu stogo soliariumu.
Kiekvienas butas parduodamas su vieta automobiliui ir sandėliuku.

Šiame uždarame komplekse yra įspūdingas beveik 10 000 m² bendras sodas, paskirstytas trimis lygiais ir integruotas su trimis bendraisiais baseinais, apsuptas natūralios vejos ir kruopščiai atrinktų medžių bei augalų.

San Miguel de Salinas tai žavus miestelis Vega Baja del Segura regione, vos kelios minutės nuo geriausių Kosta Blankos paplūdimių ir golfo aikštynų. Savivaldybė, apsupta išskirtinės gamtos, siūlo ramią atmosferą ir visas būtinas paslaugas, tokias kaip prekybos centrai, restoranai, sveikatos centrai ir mokyklos. Alikantės oro uostas yra už 50 km, o Mursijos (Corvera) oro uostas – už 55 km.
Completion: 2026-10-31

Panašūs pasiūlymai

Compare listings

Compare