2 miegamųjų butas, La Manga

  • €196 028
Gran Vía de La Manga, Urbanización Los Miradores del Puerto, La Manga del Mar Menor, San Javier, Campo de Cartagena y Mar Menor, Región de Murcia, España
Nauja statyba Pirmoji paplūdimio linija Šalia paplūdimio Vaizdas į jūrą
2 miegamųjų butas, La Manga
Gran Vía de La Manga, Urbanización Los Miradores del Puerto, La Manga del Mar Menor, San Javier, Campo de Cartagena y Mar Menor, Región de Murcia, España
  • €196 028

  • 1428
  • Objekto ID
  • Butas
  • Objekto tipas
  • 2
  • Miegamieji
  • 2
  • Vonios kambariai
  • 96

Video

  • Miestas La Manga
  • Šalis Ispanija

Išsami informacija

  • Objekto ID: 1428
  • Rinka: Pirminė
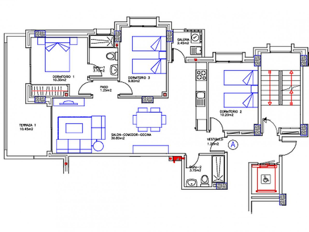
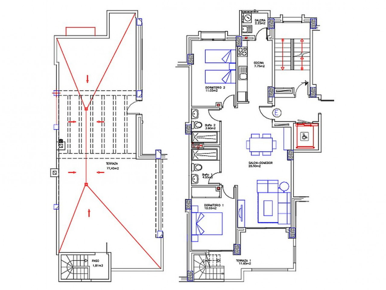
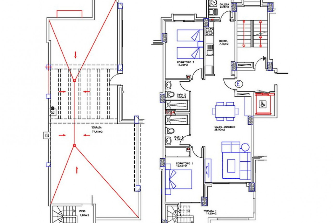
  • Plotas: 96 m²
  • Pridavimas: 2025-10-31
  • Atstumas iki jūros: iki 100 m
  • Cokolinis aukštas: Ne
  • Buitinė technika: Ne
  • Terasa: 12 m²
  • Baseinas: Bendras
  • Šalia: Parduotuvių, Paplūdimio
  • Vaizdas: Jūra
  • Parkingas: Taip
  • Oro kondicionavimo sistema: Paruošta įrengimui
  • Baldai: Ne

Aprašymas

Miradores del Puerto – apartamentų kompleksas vienoje iš populiariausių La Manga vietovių. Šį pirmos paplūdimio linijos būstą sudaro du dviviečiai miegamieji (su įmontuotomis spintomis), pagrindinis vonios kambarys (su vonia), atskira virtuvė (su tiesiogine prieiga į komunalinę zoną gale) ir atviro plano svetainės / valgomojo erdvė, vedanti į erdvią terasą, iš kurios atsiveria nuostabūs ir nepertraukiami jūros vaizdai.

Kompleksas yra 300 metrų atstumu nuo daugelio vietinių patogumų, įskaitant parduotuves, paplūdimio barus / kavines, restoranus, supermarketus, vaistines ir bankus, šalia SPA viešbučio, iš jo atsiveria vaizdas į Tomás Maestre prieplauką.

La Manga, jau dešimtmečius garsėja kaip turizmo traukos taškas šalia balto smėlio paplūdimių, krištolo skaidrumo vandens. Tik čia galite pasirinkti maudytis dviejose mariose arba žiūrėti, kaip saulė leidžiasi ir (arba) kyla virš bet kurio iš šių vandenų.

Mursijos oro uostas yra vos už 40 minučių kelio automobiliu.

Compare listings

Compare