Chalet, Costa Blanca South, Spain

  • €435 000
Gran Alacant - Santa Pola 03130, Costa Blanca South, Spain
Nauja statyba
Chalet, Costa Blanca South, Spain
Gran Alacant - Santa Pola 03130, Costa Blanca South, Spain
  • €435 000

  • 2437B
  • Objekto ID
  • Namas
  • Objekto tipas
  • 3
  • Miegamieji
  • 3
  • Vonios kambariai
  • 108
  • Miestas Gran Alacant - Santa Pola
  • Šalis Ispanija

Išsami informacija

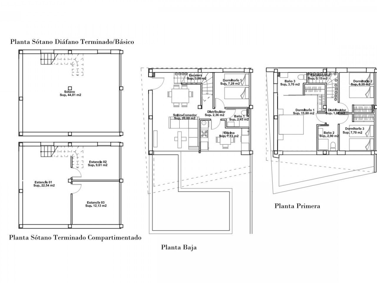
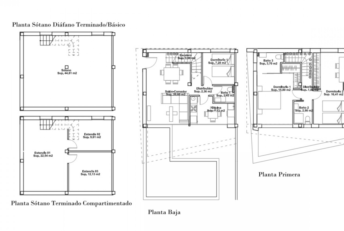
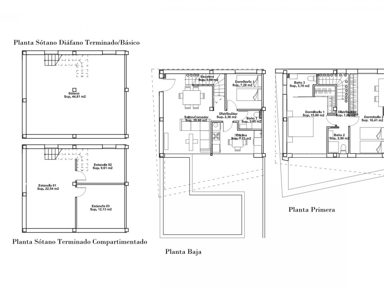
  • Objekto ID: 2437B
  • Rinka: Pirminė
  • Plotas: 108 m²
  • Sklypo plotas: 218 m²

Aprašymas

Panašūs pasiūlymai

Compare listings

Compare