• 2125J
  • Objekto ID
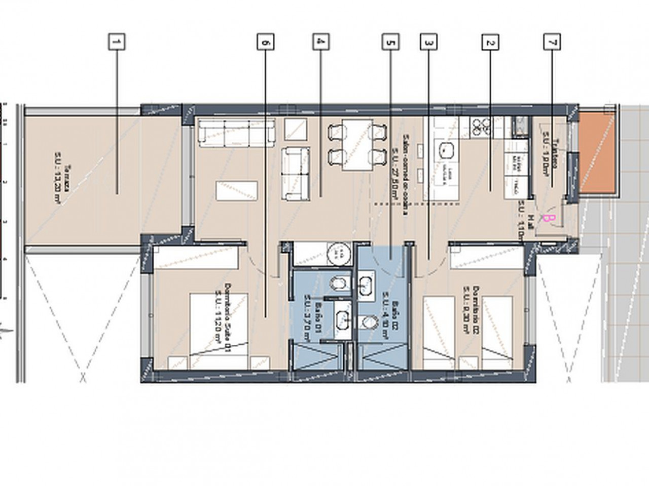
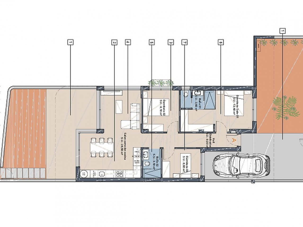
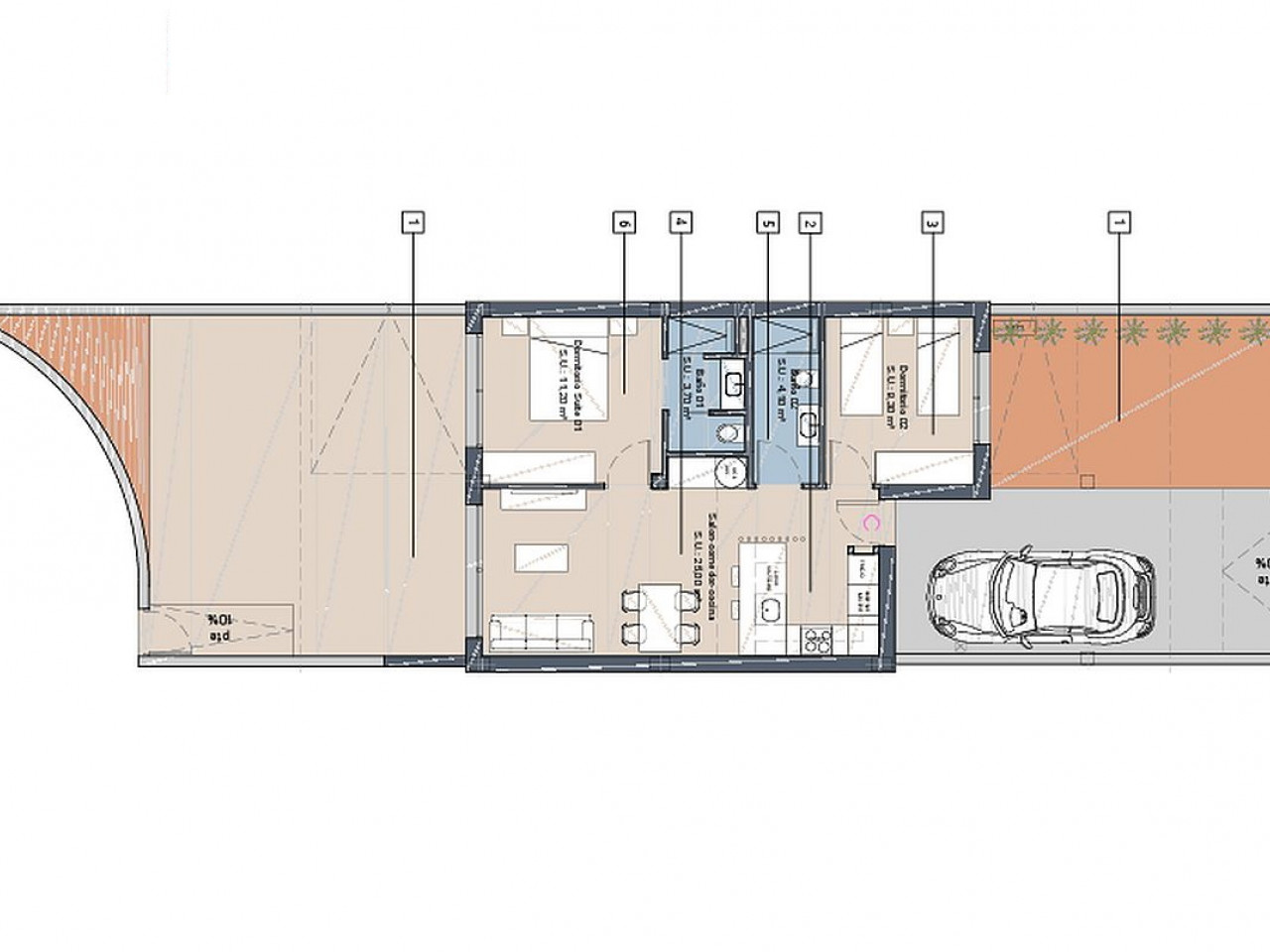
  • Bungalas
  • Objekto tipas
  • 3
  • Miegamieji
  • 2
  • Vonios kambariai
  • 86

Adresas

  • Miestas Los Alcazares
  • Šalis Ispanija

Išsami informacija

  • Objekto ID: 2125J
  • Rinka: Pirminė
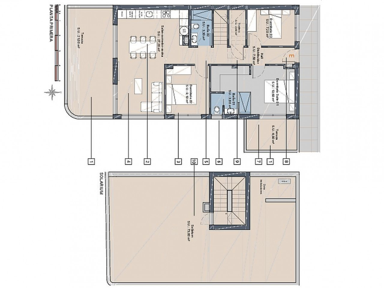
  • Plotas: 86 m²
  • Pridavimas: 2028-05-31
  • Atstumas iki jūros: iki 1 km
  • Buitinė technika: Ne
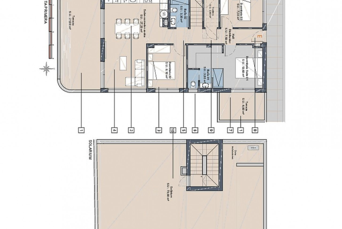
  • Soliariumas: 71 m²
  • Terasa: 16 m²
  • Baseinas: Bendras
  • Šalia: Golfo laukų, Paplūdimio
  • Vaizdas: Jūra
  • Parkingas: Taip
  • Oro kondicionavimo sistema: Paruošta įrengimui
  • Baldai: Ne

Aprašymas

LA Sunrise – naujas kompleksas Mar Menor vidaus jūros pakrantėje La Serena Golf Los Alcazares mieste.

Kompleksą sudaro 30 butų su 2 ir 3 miegamaisiais, kuriuose dera modernus dizainas, kokybė ir funkcionalumas. Iš neprilygstamos vietos atsiveria gražūs golfo ir Mar Menor jūros vaizdai. Yra 3 skirtingi pastatai, iš kurių dviejuose yra pirmame ir viršutiniame aukšte įrengti apartamentai, o trečiame – trijų aukštų ir liftas.

Pirmame aukšte įrengtiems apartamentams priklauso privatus sodas, o penthausui – soliariumas, iš kurio atsiveria geriausi jūros ir golfo aikštyno vaizdai.
Bendros uždaro LA Sunrise komplekso patalpos buvo kruopščiai suplanuotos ir jame yra neįtikėtinas bendras baseinas su įvairiomis zonomis, įskaitant paplūdimio zoną, poilsio zoną prie baseino ir lauko bendrąjį soliariumą, apsuptą žalumos.

Šis unikalus projektas sujungia Viduržemio jūros žavesį su Kalifornijos dvelksmu Serena golfo klubo širdyje, puikiai sujungiant išskirtinę ir prabangią aplinką, idealiai tinkančią tiems, kurie siekia gyvenimo kokybės ir gerovės.

Kurortas yra išskirtinėje Kosta Kalidos vietoje. La Serena golfo aikštynas yra prie pat Jūsų namų ir daugelis kitų greičiau nei per 30 minučių. „La Serena“ golfo aikštynas yra gerai žinomas dėl savo ežerų ir augmenijos, kuri pagerina natūralų kraštovaizdį. Vandens yra 16 iš 18 duobučių, todėl tai yra iššūkis visų lygių golfo žaidėjams.

Los Alcazares miestelis yra nedidelė pakrantė su gražia promenada palei paplūdimį prie Mar Menor, didžiausio druskos ežero Europoje su 170 km2 paviršiaus ir 5 salomis. Kitas aspektas, dėl kurio „LA Sunrise“ kompleksas yra unikalus, yra tai, kad lengvai nueisite iki Los Alcazares centro, kuriame gausu barų, restoranų, parduotuvių ir prekybos centrų. Teritorija yra sujungta per greitkelį su Kartachenos, Mursijos ir Alikantės miestais. Jis yra tik 25 minutės nuo Mursijos oro uosto ir 55 minutės nuo Alikantės oro uosto.

Panašūs pasiūlymai

Compare listings

Compare