Town House, Costa Blanca South, Spain

  • €296 000
Gran Alacant - Santa Pola 03130, Costa Blanca South, Spain
Nauja statyba
Town House, Costa Blanca South, Spain
Gran Alacant - Santa Pola 03130, Costa Blanca South, Spain
  • €296 000

  • 2433E
  • Objekto ID
  • Kotedžas
  • Objekto tipas
  • 2
  • Miegamieji
  • 2
  • Vonios kambariai
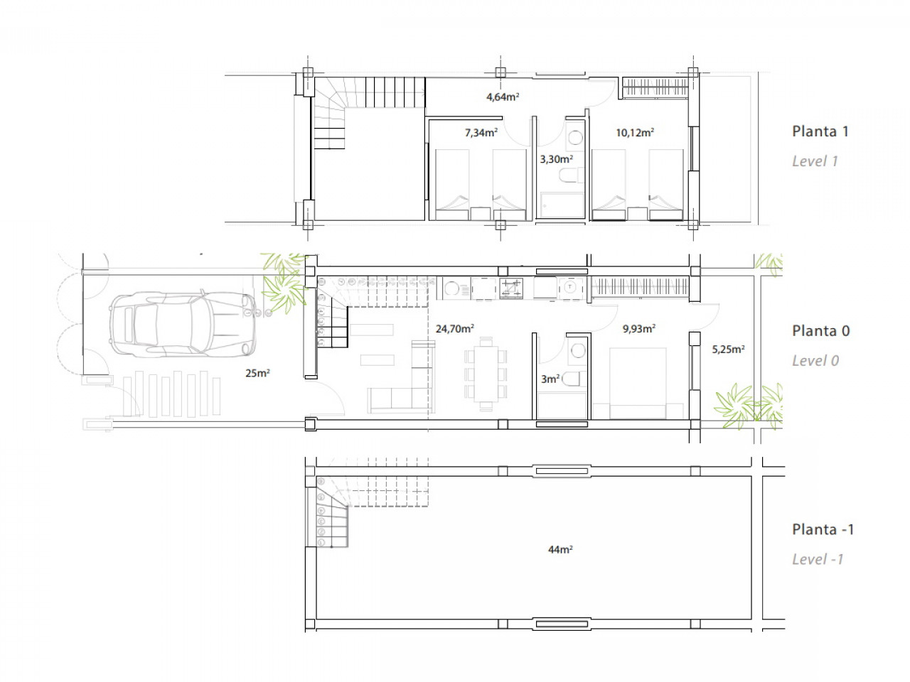
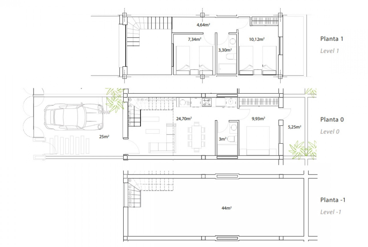
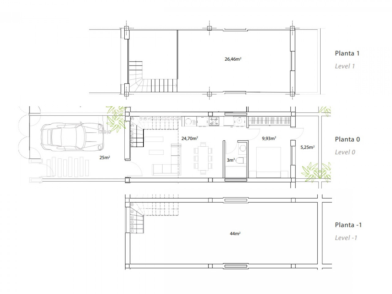
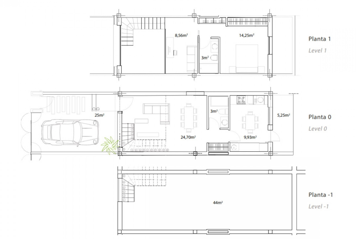
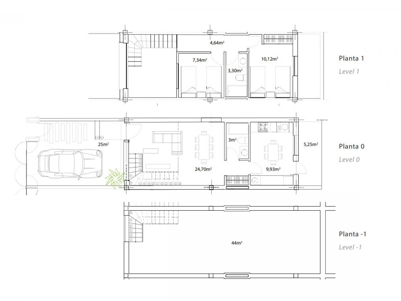
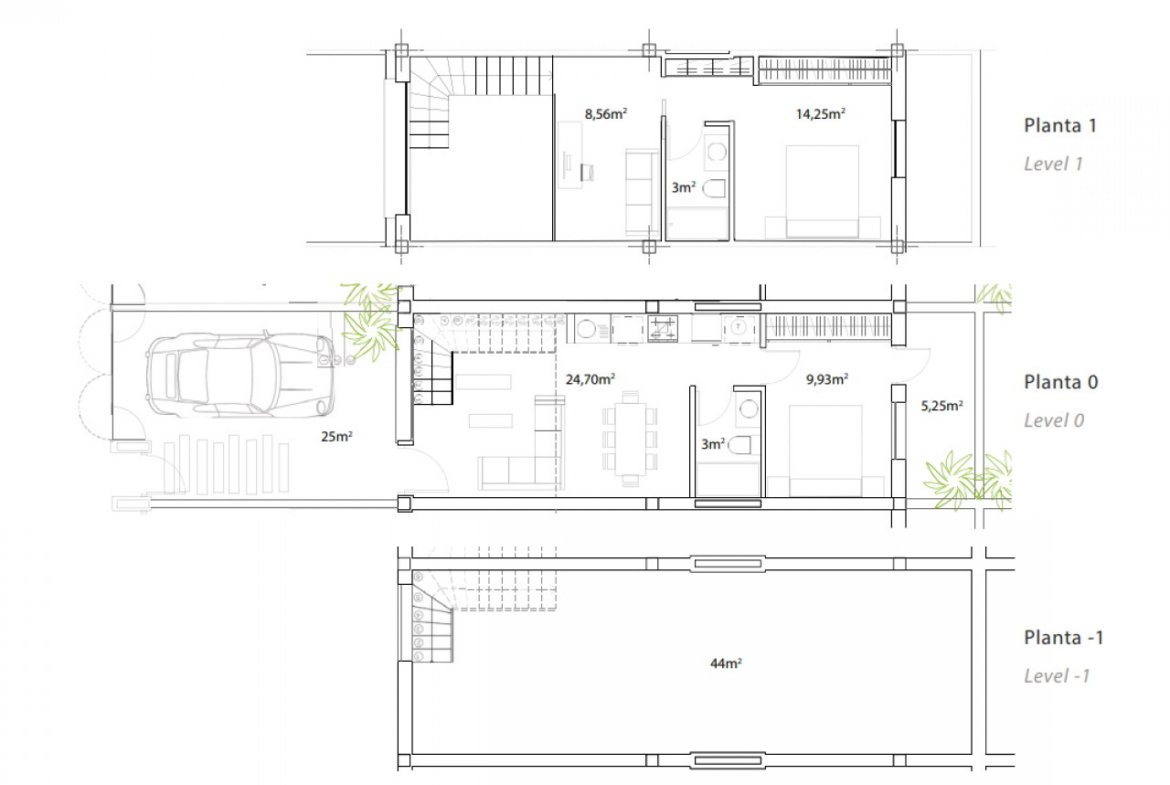
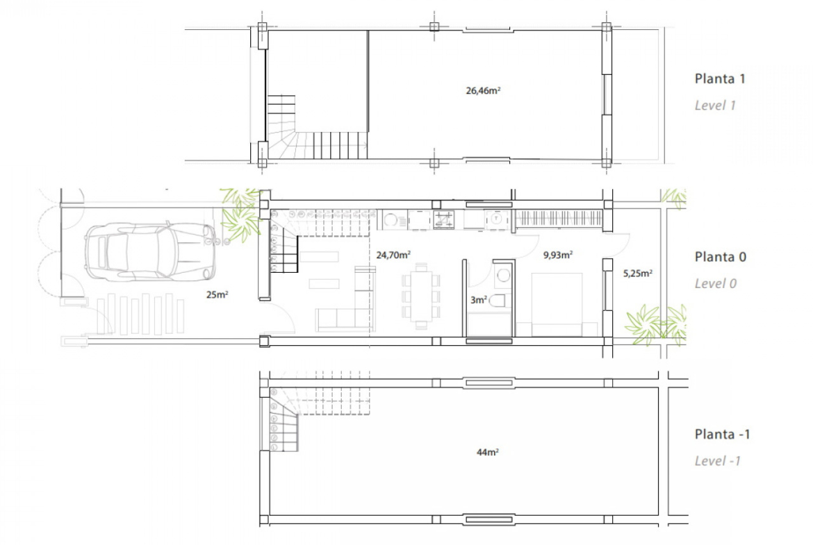
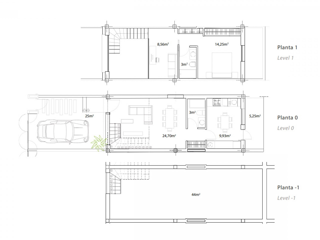
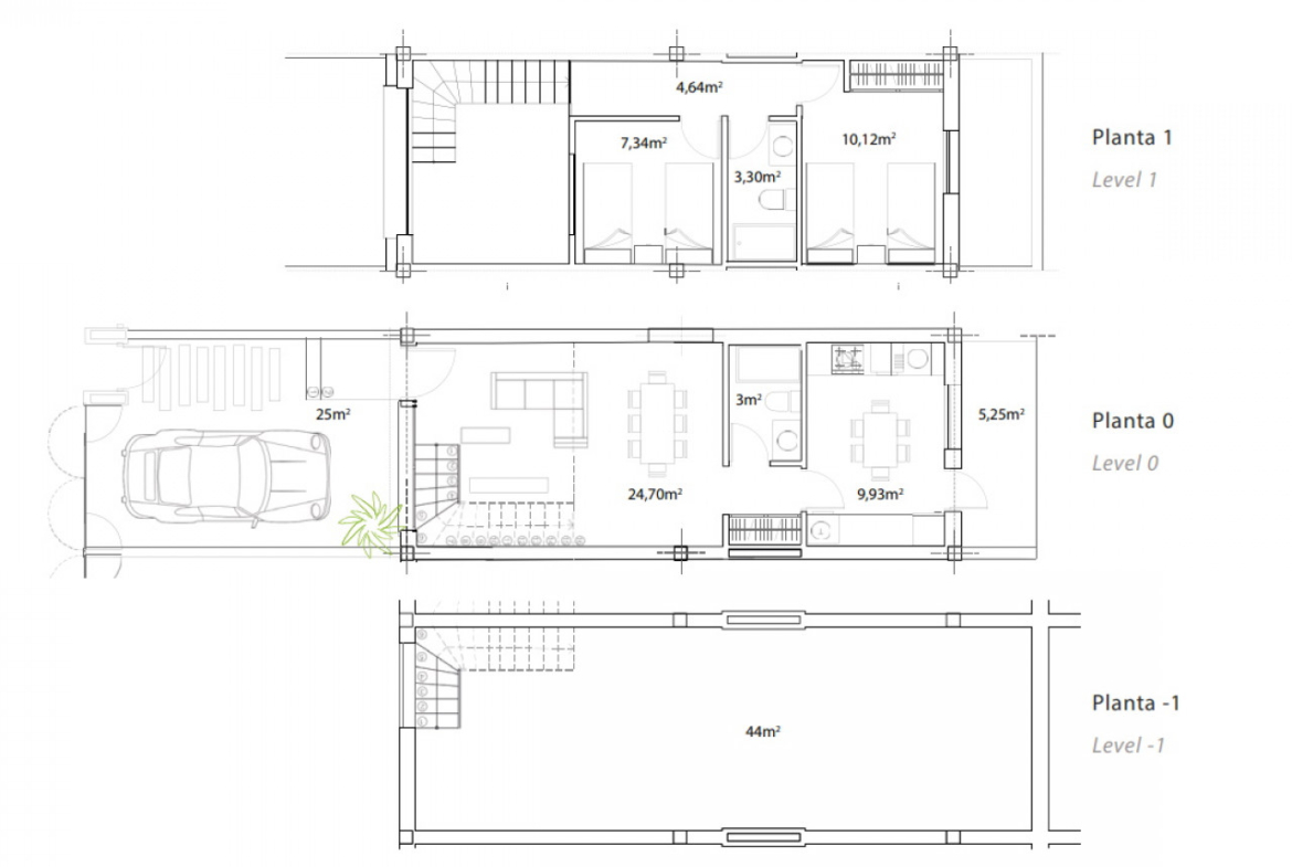
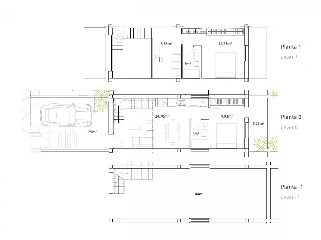
  • 121
  • Miestas Gran Alacant - Santa Pola
  • Šalis Ispanija

Išsami informacija

  • Objekto ID: 2433E
  • Rinka: Pirminė
  • Plotas: 121 m²

Aprašymas

Panašūs pasiūlymai

Compare listings

Compare