3 miegamųjų vila, Cuevas de Almanzora

  • €935 000
El Torrente, El Puente de Piedra, Desert Spring Golf, Cuevas del Almanzora, Almería, Andalucía, 04618, España
Nauja statyba Šalia golfo laukų
3 miegamųjų vila, Cuevas de Almanzora
El Torrente, El Puente de Piedra, Desert Spring Golf, Cuevas del Almanzora, Almería, Andalucía, 04618, España
  • €935 000

  • 2303B
  • Objekto ID
  • Vila
  • Objekto tipas
  • 3
  • Miegamieji
  • 4
  • Vonios kambariai
  • 175
  • Miestas Cuevas de Almanzora
  • Šalis Ispanija

Išsami informacija

  • Objekto ID: 2303B
  • Rinka: Pirminė
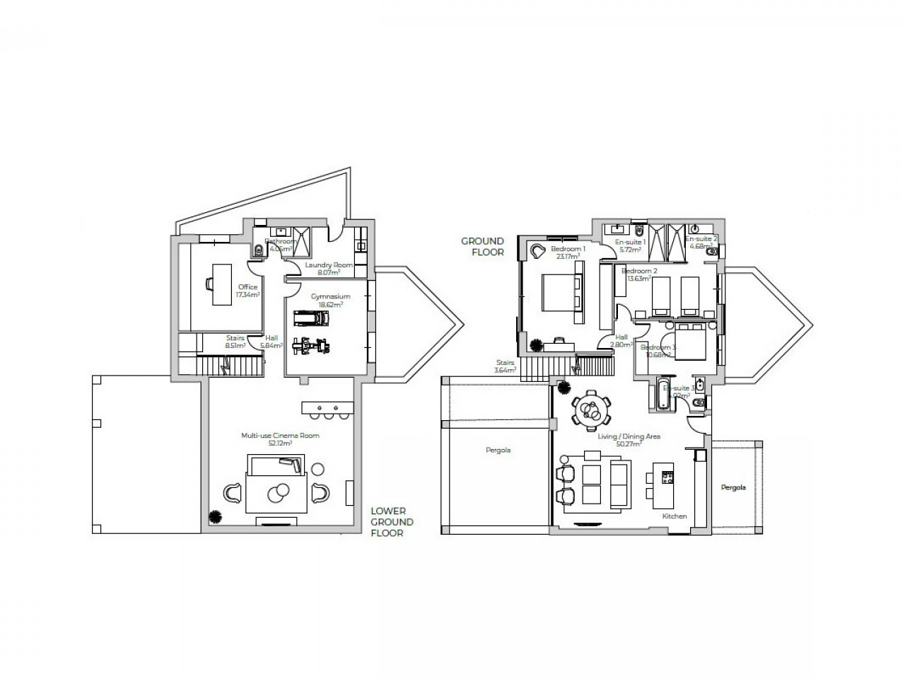
  • Plotas: 175 m²
  • Sklypo plotas: 795 m²
  • Pridavimas: 2026-12-11
  • Atstumas iki jūros: iki 15 km
  • Cokolinis aukštas: Taip
  • Buitinė technika: Taip
  • Terasa: 51 m²
  • Baseinas: Privatus
  • Šalia: Golfo laukų
  • Parkingas: Taip
  • Oro kondicionavimo sistema: Yra
  • Baldai: Ne

Aprašymas

„Sweet Water Island“ – prabangių vilų kompleksas, iš kurių atsiveria nuostabūs vaizdai į čempionato lygio Indiana golfo aikštyną ir už jo esančius kalnus prestižiniame „Desert Spring“ golfo kurorte.

Šis gražus, modernus ir stilingas kompleksas užima puikią vietą „Desert Springs“ kurorte ir siūlo trijų arba keturių miegamųjų vilas, iš kurių atsiveria nuostabūs vaizdai į čempionato lygio Indianos golfo aikštyną ir už jo esančius kalnus.

Šiuolaikinis dizainas ir natūrali šviesa, sukurianti bendrą erdvės pojūtį, yra išskirtinės rafinuoto interjero savybės, siūlančios stilingus namus su moderniu patrauklumu. Uždaras kiemas, gilios šešėlinės verandos, privatus apželdintas sodas, iš kurio atsiveria tiesioginis vaizdas į golfo aikštyną, individualus baseinas, įmontuota kepsninė ir plačios stogo terasos – tai tik keletas išorinių šio nekilnojamojo turto ypatybių.

„Desert Springs“ tai unikalus kurortas, įsikūręs viename ramiausių ir geidžiamiausių Andalūzijos pakrantės rajonų, Cuevas de Almanzoroje ir Veroje, Almerijoje. Tai apdovanojimus pelnęs golfo, sporto ir laisvalaikio kurortas, įsikūręs tarp uolėtų atodangų ir smaragdo žalumo farvaterių, prabangiame dvare. Kurortą supa nepaliesta gamta, iš jo atsiveria įspūdingi vaizdai į žymias kalnų grandines ir Viduržemio jūrą.

„Desert Springs“ yra neprilygstamoje vietoje plynaukštėje, iškilusioje virš Almanzoros upės lygumos, vos už kelių kilometrų nuo Vera ir Villaricos paplūdimio kurortų. Artimiausias miestas yra turgaus miestelis Cuevas de Almanzora, o parduotuvių taip pat yra Palomares mieste. Paplūdimys ir gražus uostamiestis Villaricos yra šalia Palomares, juose gausu gerų barų ir restoranų, įskaitant puikų paplūdimio barą. Almerijos tarptautinis oro uostas yra lengvai pasiekiamas automobiliu per 45 minutes A7 greitkeliu, Mursija/Korvera – per 70 minučių, o Alikantė – per 110 minučių.

Compare listings

Compare