3 miegamųjų vila, Ciudad Quesada

  • €449 500
Calle Pico de la Sagra, Ciudad Quesada, Rojales, el Baix Segura / La Vega Baja, Alacant / Alicante, Comunitat Valenciana, 03170, España
Nauja statyba Šalia golfo laukų
3 miegamųjų vila, Ciudad Quesada
Calle Pico de la Sagra, Ciudad Quesada, Rojales, el Baix Segura / La Vega Baja, Alacant / Alicante, Comunitat Valenciana, 03170, España
  • €449 500

  • 1730B
  • Objekto ID
  • Vila
  • Objekto tipas
  • 3
  • Miegamieji
  • 2
  • Vonios kambariai
  • 90
  • Miestas Ciudad Quesada
  • Šalis Ispanija

Išsami informacija

  • Objekto ID: 1730B
  • Rinka: Pirminė
  • Plotas: 90 m²
  • Sklypo plotas: 248 m²
  • Pridavimas: 2026-08-14
  • Atstumas iki jūros: iki 5 km
  • Cokolinis aukštas: Ne
  • Buitinė technika: Taip
  • Baseinas: Privatus
  • Šalia: Parduotuvių, Golfo laukų
  • Parkingas: Taip
  • Oro kondicionavimo sistema: Paruošta įrengimui
  • Baldai: Ne

Aprašymas

Elegantiškos, naujos, prabangios vilos, esančios šalia gražaus golfo aikštyno La Marquesa, Ciudad Quesada mieste.

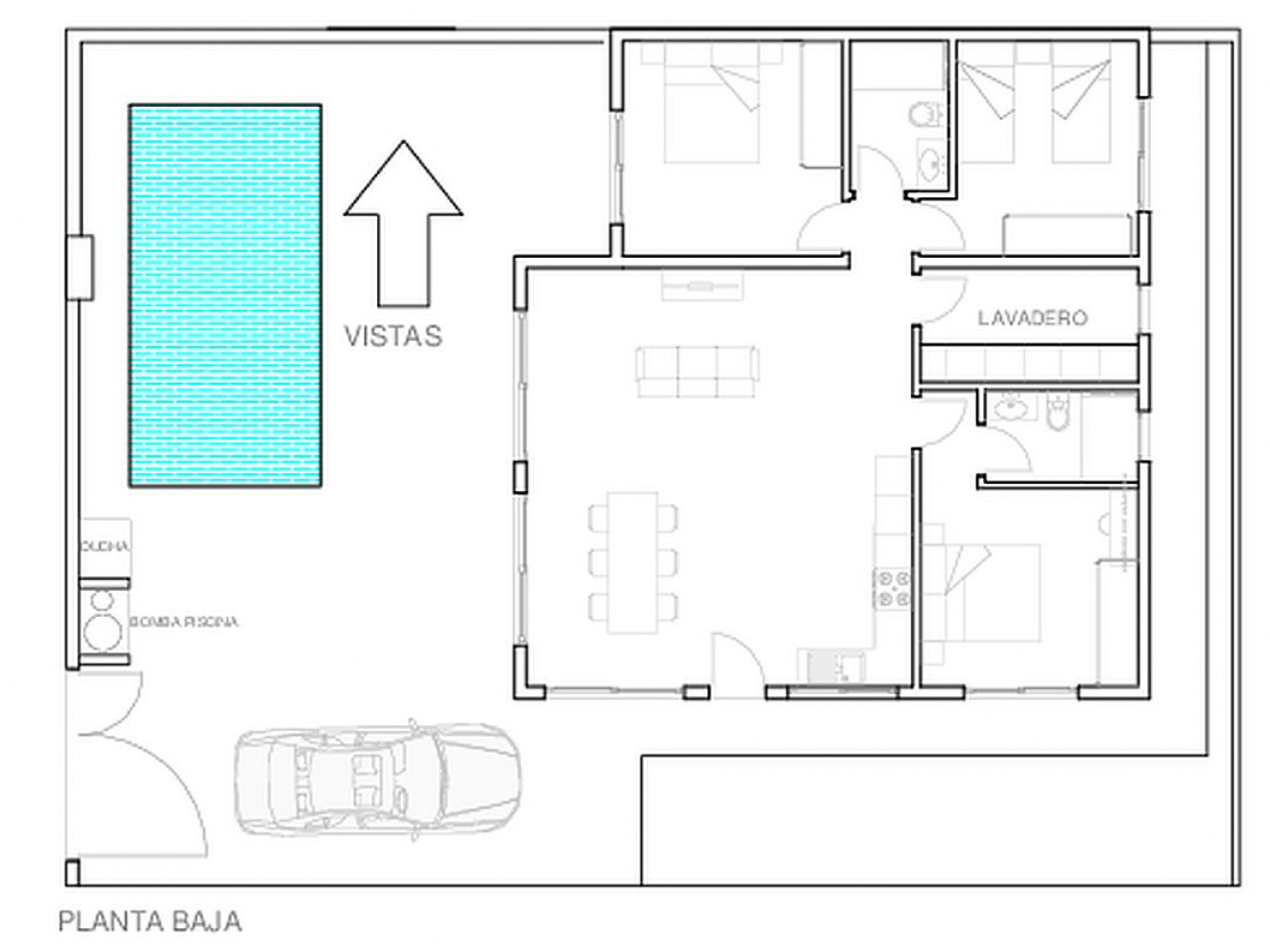
Vilos orientuotos į pietus ir pastatytos per du aukštus, su 3 miegamaisiais ir 2 vonios kambariais.
Pirmame aukšte yra didelė svetainė, valgomasis ir atvira virtuvė, du miegamieji ir šeimos vonios kambarys. Antrame aukšte didžiulis miegamasis ir vonios kambarys su išėjimu į beveik 50 m² dydžio terasą.

Namo apšvietimo dėka per langus atsiveria puikus vaizdas į sodą ir baseiną. Sklype yra plytelėmis išklota terasa su kepsnine ir automobilių stovėjimo aikštele.
Iš vilos atsiveria nuostabūs La Marquesa golfo aikštyno vaizdai. Būstas yra tik 10 minučių kelio nuo Guardamar paplūdimių ir 30 minučių nuo Alikantės oro uosto.

Panašūs pasiūlymai

Compare listings

Compare