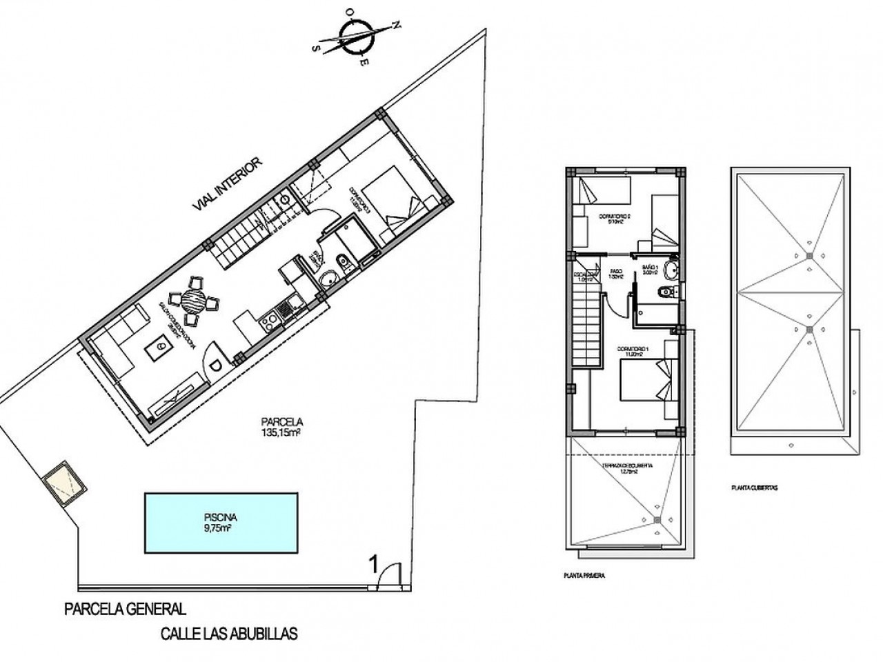
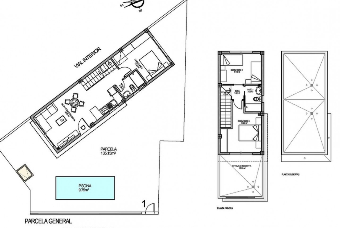
„Laguna Rosa Villas“ – septynių nepriklausomų dviejų aukštų vilų kompleksas
Pirmame aukšte yra atviro plano virtuvės su svetaine, vienas erdvus miegamasis su įmontuota spinta ir vonios kambarys.
Antrame aukšte yra dar du erdvūs miegamieji su įmontuotomis spintomis ir vonios kambariais. Iš pagrindinio miegamojo yra tiesioginis išėjimas į gražią, saulėtą terasą.
Viršutiniame aukšte rasite saulėtą stogo terasą, kurioje daug vietos terasos baldams, gultams ir poilsio zonai. Į stogo terasą/soliariumą galima patekti laiptais iš antrame aukšte esančios terasos.
Vilos pristatomos su paruoštu montavimui oro kondicionieriumi, buitine technika, apšvietimo paketu, dušo ekranu ir motorinėmis žaliuzėmis.
Šalia komplekso rasite platų gražių restoranų pasirinkimą, didelį prekybos centrą Habaneras ir visus patogumus. Greitai nuvažiuosite iki kelių golfo aikštynų, taip pat gražių Torrevieja, Orihuela Costa arba Guardamar del Segura paplūdimių. Alikantės oro uostą pasieksite maždaug per 40 minučių.
Compare listings
Compare