• 2353B
  • Objekto ID
  • Butas
  • Objekto tipas
  • 1
  • Miegamasis
  • 1
  • Vonios kambarys
  • 41

Video

Adresas

  • Miestas Torrevieja
  • Šalis Ispanija

Išsami informacija

  • Objekto ID: 2353B
  • Rinka: Pirminė
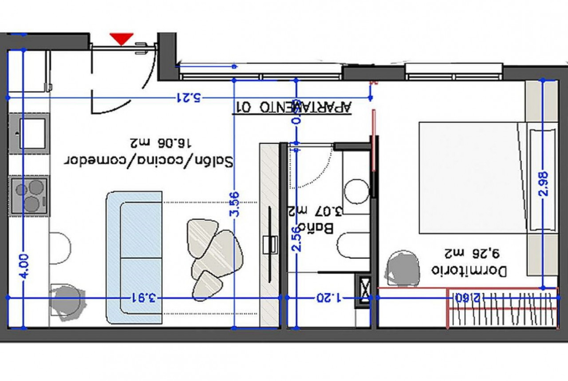
  • Plotas: 41 m²
  • Pridavimas: 2026-06-30
  • Atstumas iki jūros: iki 1 km
  • Buitinė technika: Ne
  • Baseinas: Bendras
  • Šalia: Paplūdimio
  • Parkingas: Taip
  • Oro kondicionavimo sistema: Paruošta įrengimui
  • Baldai: Ne

Aprašymas

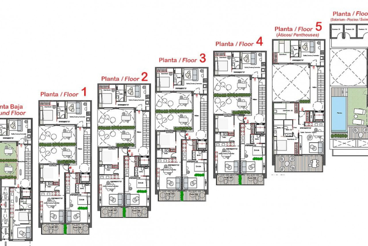
„Reference“ – modernus kompleksas, siūlantis įvairių tipų butus – nuo ​​studijų tipo iki 1 ar 2 miegamųjų butų ir penthausų Torrevieja miesto centre.

Pastatyti pagal aukščiausius standartus ir naujausius modernius bei šiuolaikinius dizainus, šie namai į erdvius kambarius įleidžia maksimalų natūralios šviesos kiekį. Šis pastatas orientuotas į komfortą, efektyvumą ir aukščiausią statybos kokybę. Juo siekiama nustatyti naują miesto gyvenimo Torrevieja mieste standartą.

Galite rinktis iš įvairių pirkimo variantų – nuo ​​pilno įsigijimo iki sezoninio plano su nuoma.

Yra bendra stogo zona su šildomu baseinu ir saulės terasa, sporto sale ir sauna. Pasirinktinai rūsyje įrengtos sandėliavimo patalpos.

„Reference“ yra Torreviejos centre, vos 300 m nuo pagrindinių paslaugų ir 600 m nuo apdovanojimus pelniusių Mėlynosios vėliavos paplūdimių bei netoliese esančių parduotuvių, barų, restoranų, prekybos centrų, bankų ir tarptautinių mokyklų.

Panašūs pasiūlymai

Compare listings

Compare