2 miegamųjų butas, Torrevieja

  • €259 000

  • 2357
  • Objekto ID
  • Butas
  • Objekto tipas
  • 2
  • Miegamieji
  • 2
  • Vonios kambariai
  • 82

Video

Adresas

  • Miestas Torrevieja
  • Šalis Ispanija

Išsami informacija

  • Objekto ID: 2357
  • Rinka: Pirminė
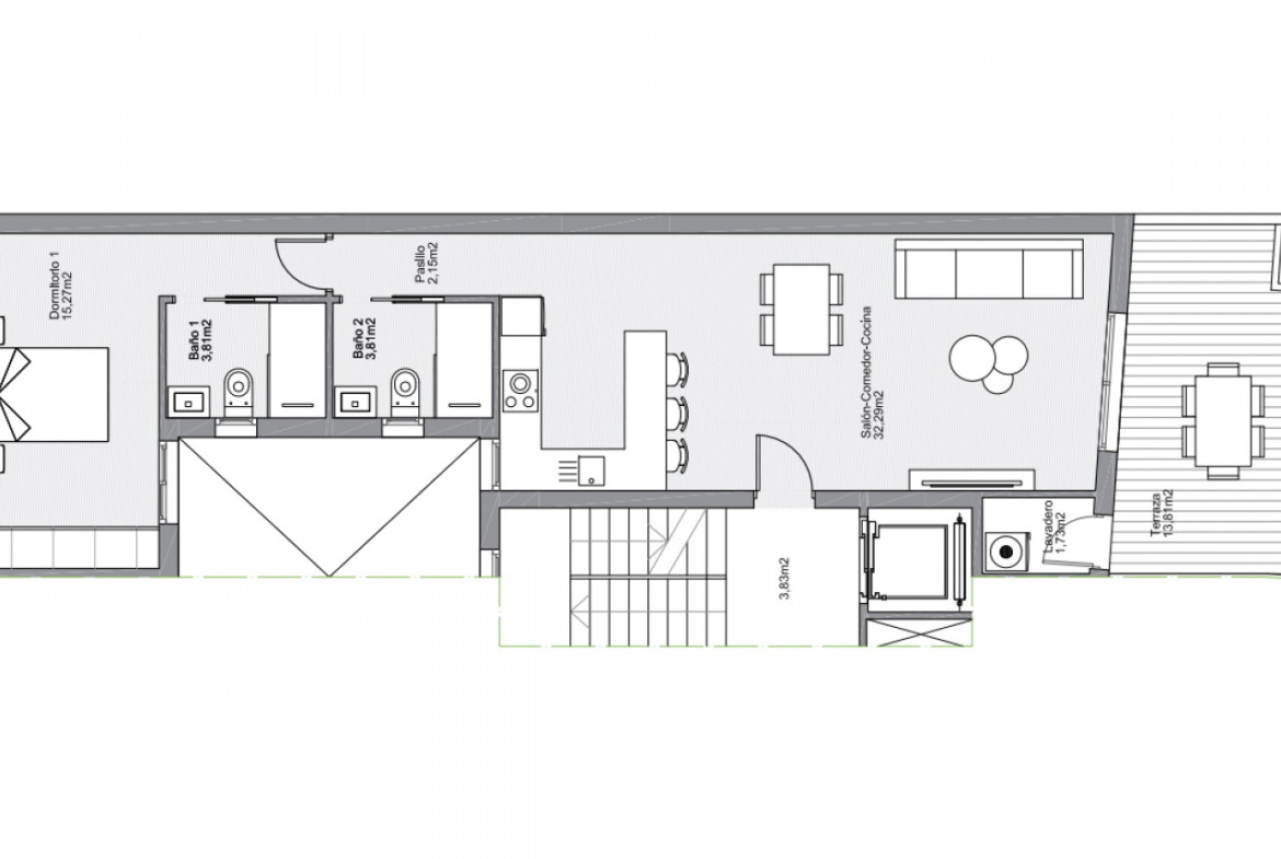
  • Plotas: 82 m²
  • Pridavimas: 2027-02-28
  • Atstumas iki jūros: iki 1 km
  • Buitinė technika: Ne
  • Terasa: 3 m²
  • Baseinas: Bendras
  • Šalia: Paplūdimio
  • Parkingas: Taip
  • Oro kondicionavimo sistema: Paruošta įrengimui
  • Baldai: Ne

Aprašymas

„Neptuno 2“ – septynių šiuolaikiškų butų kompleksas, įsikūręs Torrevieja miesto širdyje, vos 600 m nuo Viduržemio jūros.

Galite rinktis tarp 1 arba 2 miegamųjų butų, kiekviename iš jų yra 2 vonios kambariai (vienas iš jų – atskiras). Atviro plano butai sukurti taip, kad būtų kuo daugiau erdvės ir natūralios šviesos, užtikrinant komfortą ir funkcionalumą. Kiekvienuose namuose yra erdvus interjeras, kokybiška apdaila ir rami atmosfera.

Pastate yra stogo baseinas su gultais. Pirmame aukšte yra speciali vieta dviračių ir elektrinių paspirtukų stovėjimo aikštelėms, o liftu galima pasiekti visus aukštus, įskaitant ir stogą.

Šie stilingi namai puikiai derina pakrantės gyvenimo privalumus su miesto gyvenimo būdo patogumu, siūlydami lengvą prieigą prie parduotuvių, restoranų ir laisvalaikio praleidimo vietų. Įsikūręs gyvybingoje Patricio Pérez gatvėje Torrevieja širdyje, „Neptuno 2“ yra puikioje vietoje, vos už kelių žingsnių nuo visų būtiniausių paslaugų ir patogumų. Dėl rytinės orientacijos erdvės yra šviesios, saulėtos, o Playa del Acequión paplūdimys yra vos už 900 metrų. Alikantės tarptautinis oro uostas yra už 45 km.

Panašūs pasiūlymai

Compare listings

Compare