Town House, Costa Blanca South, Spain

  • €280 000
Gran Alacant - Santa Pola 03130, Costa Blanca South, Spain
Town House, Costa Blanca South, Spain
Gran Alacant - Santa Pola 03130, Costa Blanca South, Spain
  • €280 000

  • 2433
  • Objekto ID
  • 2
  • Miegamieji
  • 1
  • Vonios kambarys
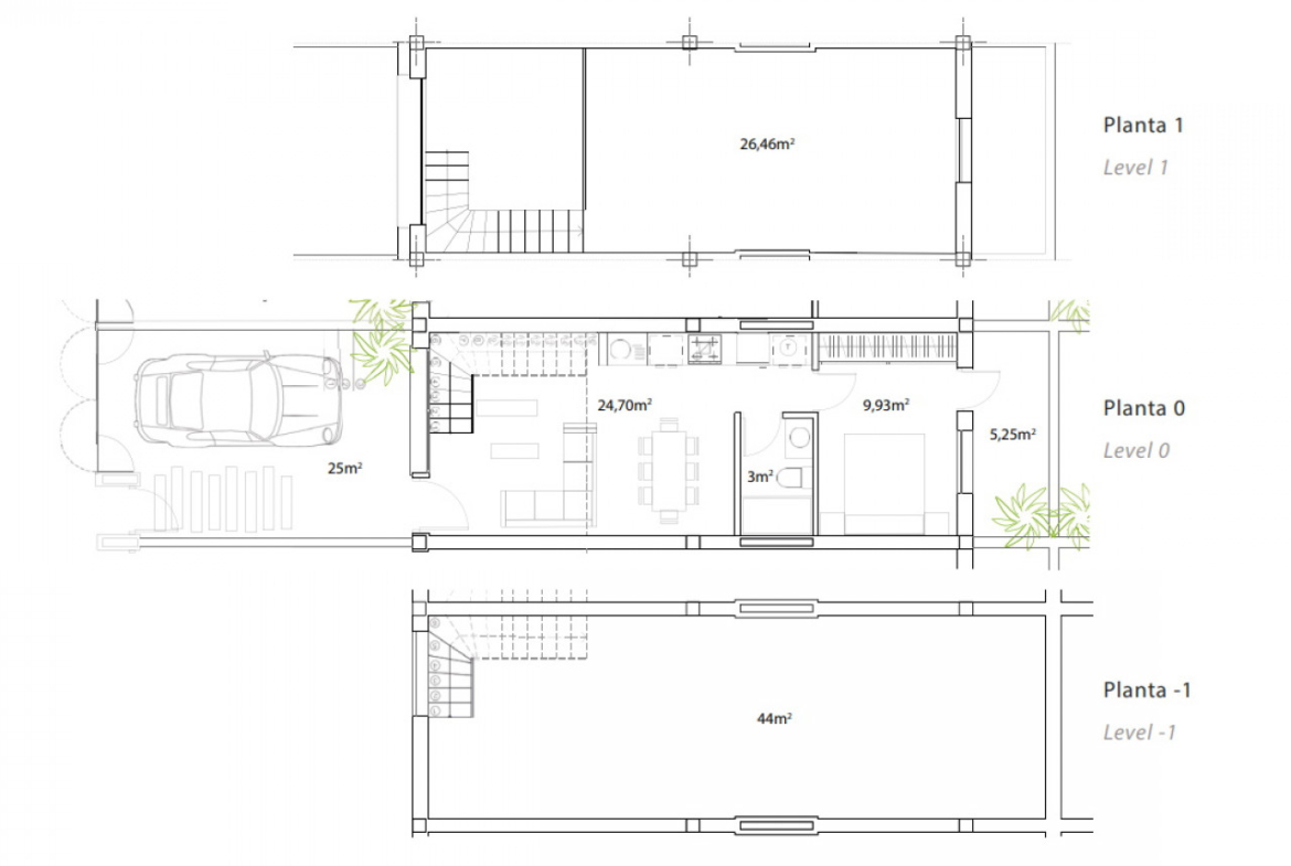
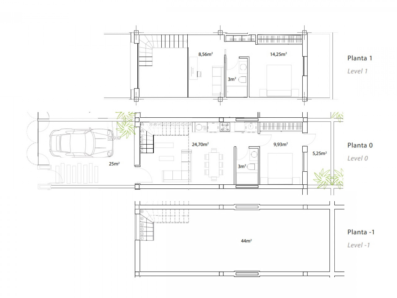
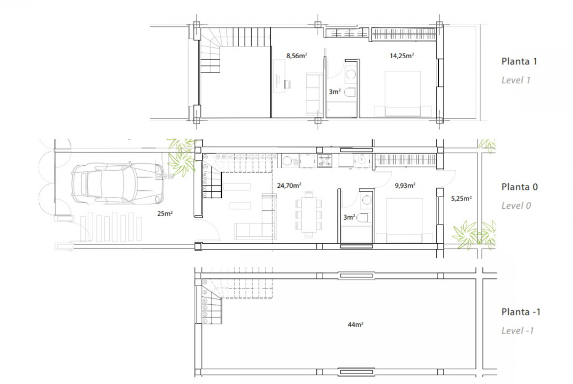
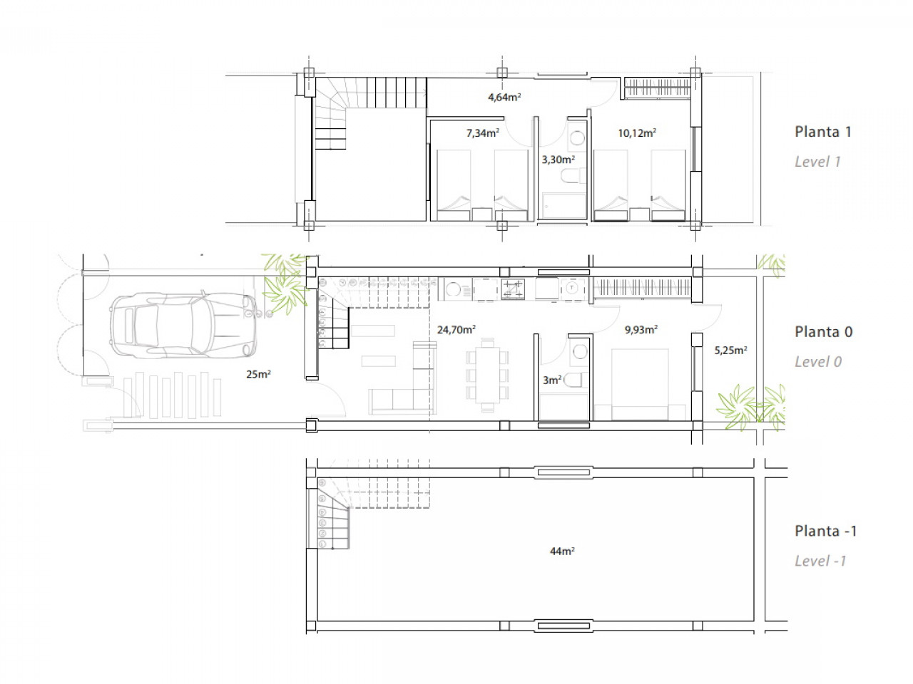
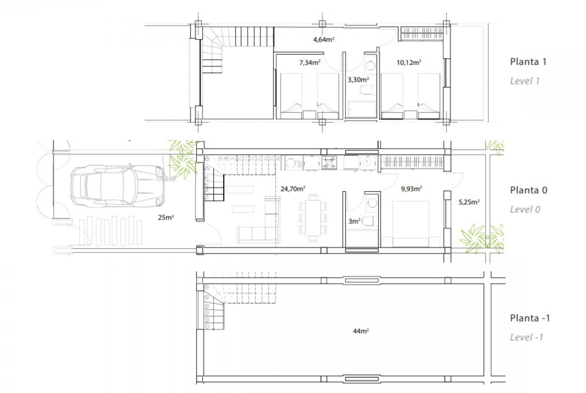
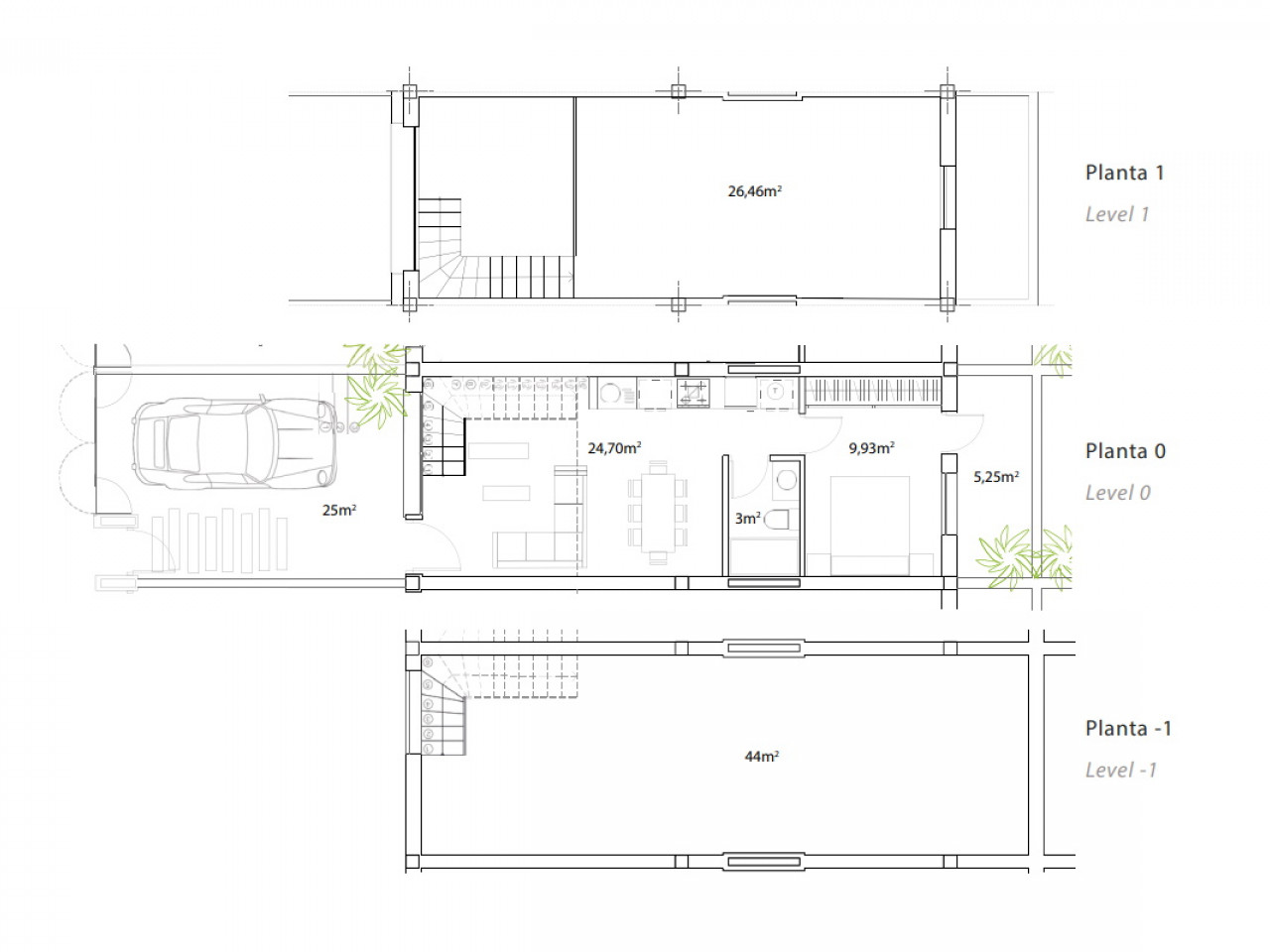
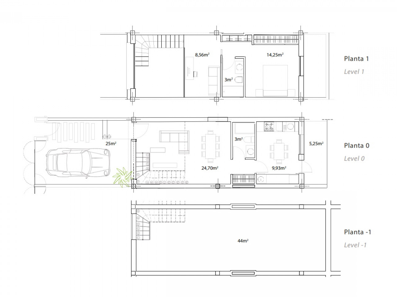
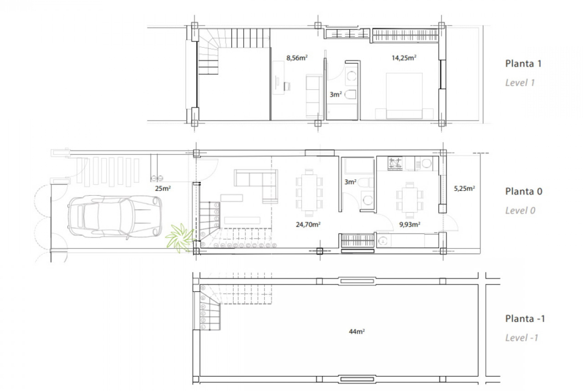
  • 121

Išsami informacija

  • Objekto ID: 2433
  • Rinka: Pirminė
  • Plotas: 121 m²

Aprašymas

Compare listings

Compare